上海鸿寿坊项目简介
一、背景介绍
鸿寿坊,位于上海市普陀区长寿路与西康路交汇处,紧邻静安寺商圈。该项目总建筑面积约8.8万平方米,由两栋精品甲级办公楼(东塔、西塔)及里弄商业组成。鸿寿坊以其优越的地理位置和先进的建筑设计,致力于成为区域总部经济的聚集地,形成产业集聚效应。项目已获得WELL、LEED金级预认证,展现出其对高品质办公环境的追求。
二、项目参数
- 租金报价:6元~8元/平方米/天
- 项目地址:上海市普陀区西康路1143号
- 建筑面积:88,000平方米
- 商业面积:15,000平方米
- 办公面积:48,000平方米
- 整栋面积:东塔3.5万平方米(总高25层),西塔1.3万平方米(总高11层)
- 整层面积:东塔1,500平方米~1,850平方米,西塔1,200平方米~1,680平方米
- 分割面积:250平方米~1,850平方米~整栋
- 整层净高:2.9米
- 架空地板:120mm
- 电梯配置:东塔客梯8部、货梯1部,西塔客梯3部、货梯1部
- 空调配置:东塔采用VAV系统,西塔采用VRV系统
- 停车位:370个
- 物业费:东塔36元/平方米/月,西塔25元/平方米/月
- 物业管理:丰城物业
- 竣工日期:2023年7月1日
- 项目特点:可拆卸楼板、LEED金级 & WELL金级双认证、公区配备母婴室及行政洗手间、顶层赠送大面积露台、小独栋带有企业楼宇展示LOGO
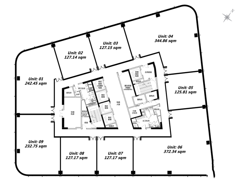
三、平面图

四、在租面积、租金与物业费
鸿寿坊提供从250平方米至整栋的灵活租赁面积,满足不同企业的办公需求。租金报价为6元~8元/平方米/天,物业费根据楼栋不同分别为东塔36元/平方米/月和西塔25元/平方米/月。具体租金和物业费将根据实际租赁面积、租赁期限及物业服务内容而定。
五、地理位置
鸿寿坊位于上海市普陀区的核心地带,紧邻静安寺商圈,占据商业和文化的交汇点。其优越的地理位置为企业提供了丰富的商务资源和便利的生活配套。
六、交通情况
鸿寿坊交通极为便利,紧邻地铁7号线和13号线双轨交汇的长寿路站,为员工和客户提供了便捷的出行条件。此外,项目周边道路网络完善,自驾车辆可轻松通达上海市各区域。
七、周围环境
鸿寿坊周围环境优越,紧邻静安寺商圈,汇聚了众多高端商业设施和休闲娱乐场所。同时,项目所在地区也是上海的文化艺术中心之一,为企业员工提供了丰富多彩的文化生活。此外,鸿寿坊还聚焦智能软件、研发服务、科技金融、生命健康四大产业,与南京西路、静安寺商圈的上下游产业链紧密相连,形成了强大的产业集聚效应。
总之,上海鸿寿坊以其优越的地理位置、先进的建筑设计、完善的配套设施和便捷的交通条件,成为普陀区乃至上海市的商务新地标。无论是寻求高品质办公环境的企业,还是追求生活品质的员工,这里都是一个值得考虑的理想选择。
